7600 Sq.ft (Full Civil) G + 2 Office Building

ITEMA LOOMS-Sitra

Commercial Project

We are pleased to present the ITEMA LOOMS Pvt. Ltd. office building at Arangasamy Nagar, Sitra, spanning 7,600 sq. ft. across a G+2 structure. This full civil construction project is designed to provide an efficient and functional workspace, incorporating modern architectural elements while prioritizing comfort and usability. The building aims to foster a productive environment, reflecting our commitment to quality construction and innovative design.

  • ITEMA LOOMS Pvt.Ltd - Arangasamy Nagar
  • Tamilnadu
  • 7600 Sq.ft
  • Full Civil
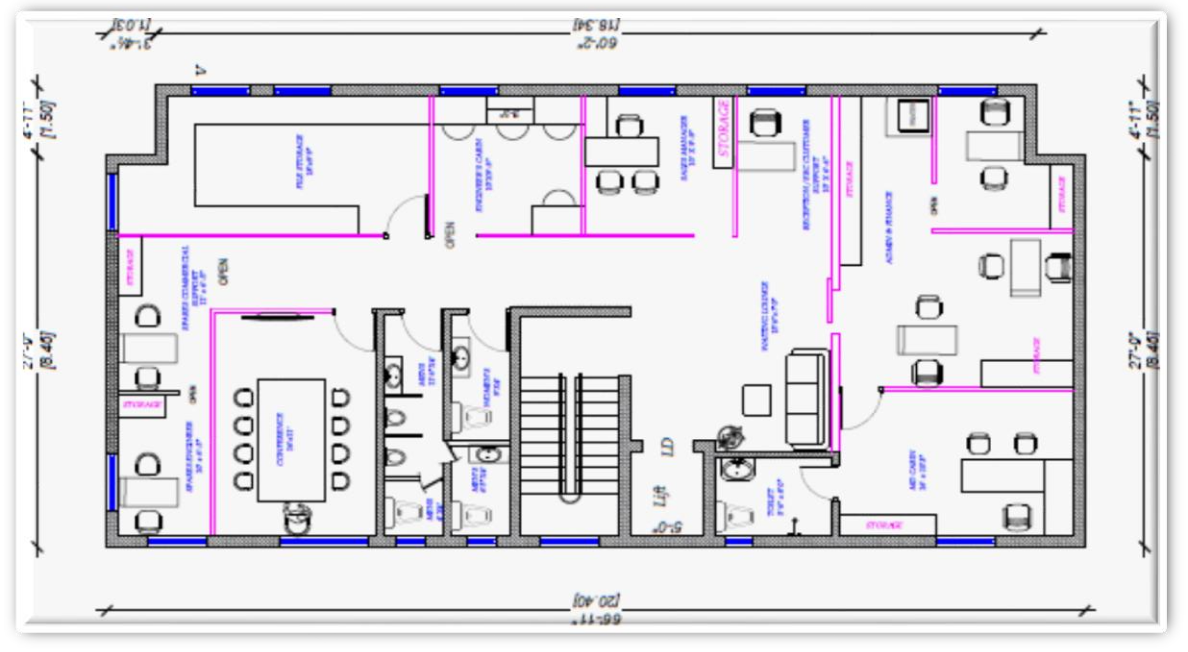
GROUND FLOOR LAYOUT
FIRST FLOOR LAYOUT
SECOND FLOOR LAYOUT
PHOTO GALLERY
(+612) 2531 5600 info@example.com PO Box 1622 Colins Street West Victoria 8077 Australia