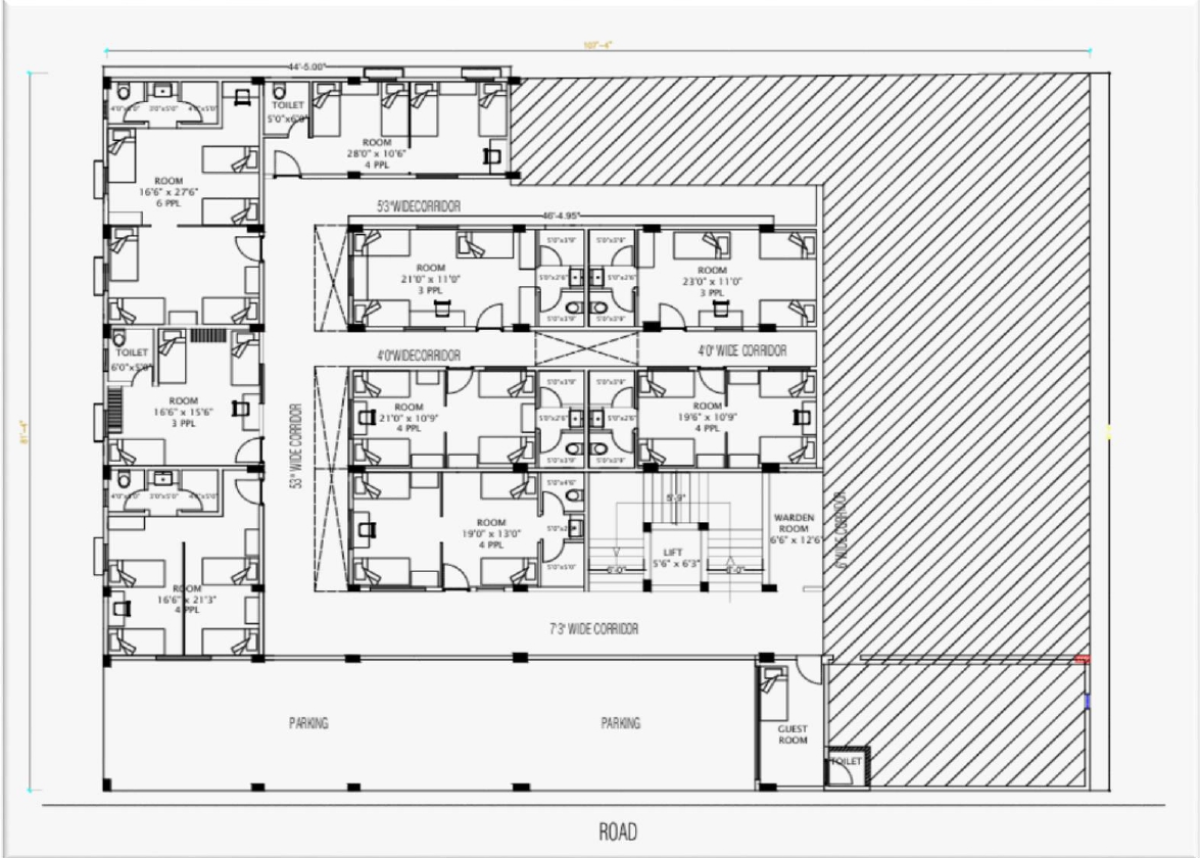
5,940 Sq.ft G+1 Men’s Hostel

MR. DORAIRAJ Hostel Building

Renovation & Elevation Project

We are thrilled to showcase the extension of the MR. DORAIRAJ Hostel Building at Tidel Park, spanning 5,940 sq. ft. across a G+1 structure. This development is designed to cater to the evolving needs of modern living spaces while maintaining optimal functionality. With careful attention to layout and amenities, the project provides a seamless blend of comfort and efficiency, making it an ideal environment for its residents. The extension is a testament to our commitment to quality, design excellence, and delivering spaces that enhance the overall living experience.

  • MR. DORAIRAJ Hostel Building
  • Tidelpark,Coimbatore
  • 5940 Sq.ft
FLOOR LAYOUT
SITE STATUS
(+612) 2531 5600 info@example.com PO Box 1622 Colins Street West Victoria 8077 Australia