5,800 Sq.ft (Full Civil) G + 3 Residential Building

MR.DEVARAJ Residential Building

Residential Project

Ameritore Infra successfully completed the construction of a G+3 residential building in LN Nagar, covering an area of 5,800 sq. ft. This project highlights our expertise in delivering robust and efficient housing solutions. The building is thoughtfully designed to provide a safe and comfortable living experience, adhering to the highest standards of construction excellence

  • Residential Building
  • LN Nagar, Tamilnadu
  • 5800 Sq.ft
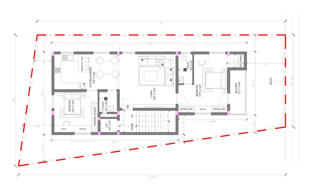
TYPICAL FLOOR LAYOUTS
SITE STATUS
(+612) 2531 5600 info@example.com PO Box 1622 Colins Street West Victoria 8077 Australia