5,807 Sq.ft G+2 Residential Building

MR.KARNAN - OxygenVillas

Residential Project

Ameritore Infra successfully delivered a G+2 residential building in Kalapatti, spanning 5,807 sq. ft. This project showcases our expertise in designing and constructing modern living spaces that prioritize comfort, functionality, and sustainability. With meticulous attention to detail, this villa stands as a symbol of quality and innovation in residential development.

  • Residential Building
  • Kalapatti, Tamilnadu
  • 5807 Sq.ft
GROUND FLOOR LAYOUT
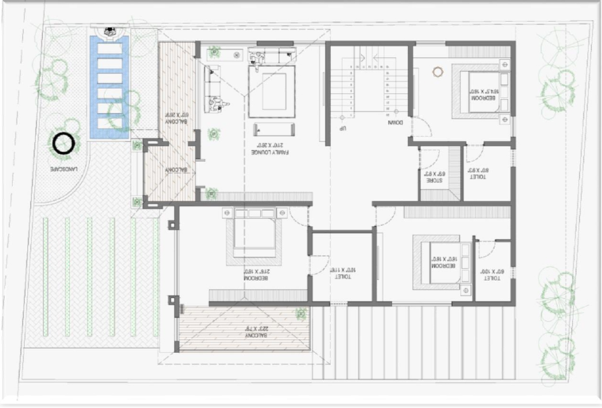
FIRST FLOOR LAYOUT
SITE STATUS
(+612) 2531 5600 info@example.com PO Box 1622 Colins Street West Victoria 8077 Australia